Skip to content
Home
Services
Projects
About Us
Contact
Home
Services
Projects
About Us
Contact
get in touch
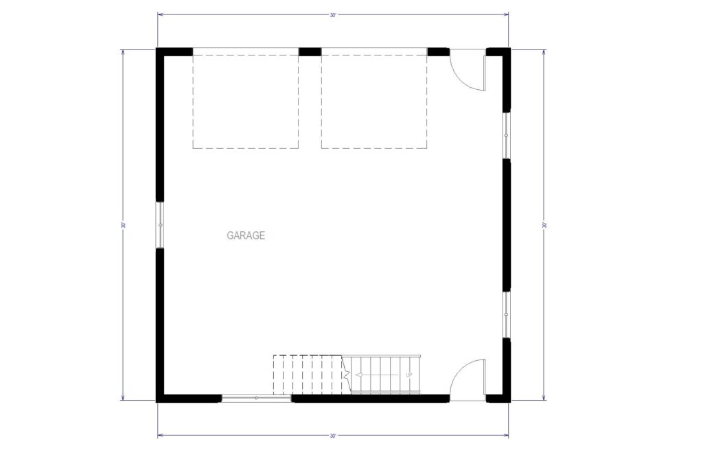
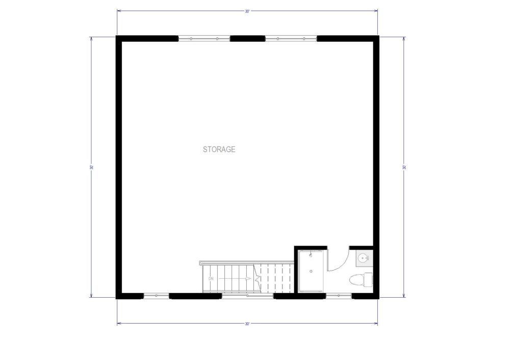
Gambrel Garage
Previous
Next
Share the Post:
Related Posts
Linford
Read More
Halstead
Read More
View All
New Builds
Renovations & Additions
Decks & Sunrooms
Garages
View All
New Builds
Renovations & Additions
Decks & Sunrooms
Garages